Trilocale in vendita

Torino, Via Errico Giachino - Borgata Tesso
€ 125.000
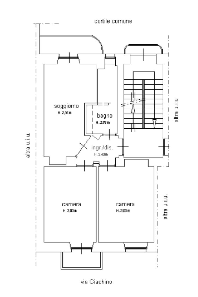
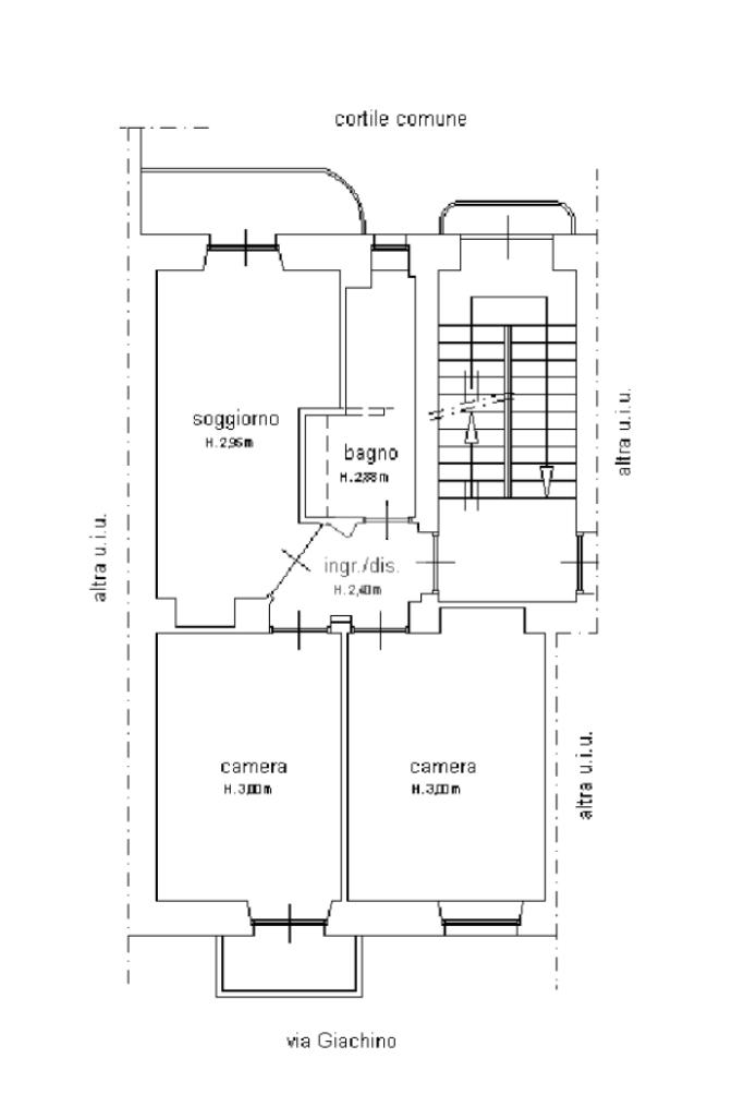
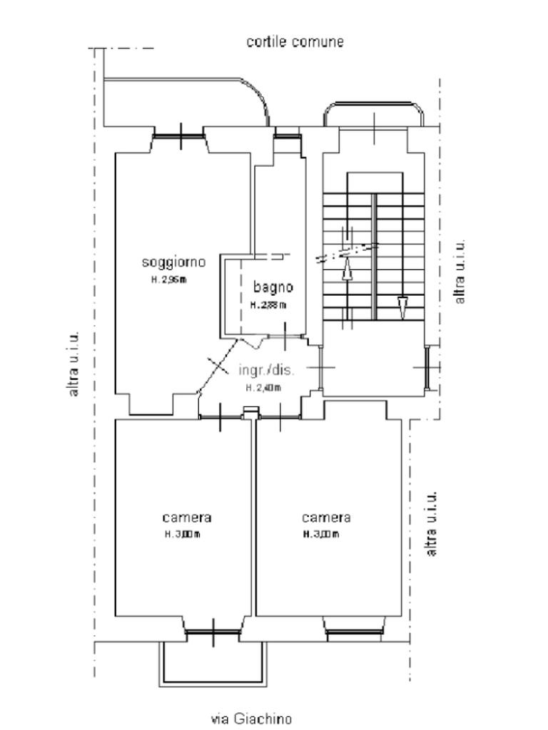
3 locali 3 locali
68 Mq 68 Mq
1 bagno 1 bagno

Trilocale in vendita

Torino, Via Errico Giachino - Borgata Tesso

Descrizione annuncio

Nel cuore di Borgata Tesso a Torino, proponiamo un trilocale completamente ristrutturato, situato al primo piano di uno stabile degli anni '50. L'appartamento, di 68 mq, offre spazi ben distribuiti e funzionali. La zona giorno è luminosa e accogliente, grazie ai serramenti con doppi vetri che garantiscono isolamento termico e acustico. La sicurezza è assicurata dalla porta blindata, mentre il climatizzatore installato permette di gestire al meglio la temperatura interna in ogni stagione. Lo stabile, pur essendo privo di ascensore, si distingue per la sua solidità e il fascino delle costruzioni dell'epoca. La posizione è strategica, con servizi e trasporti facilmente accessibili, rendendo questa soluzione ideale per chi cerca comfort e praticità in una zona ben servita della città.

Mostra tutto

Nelle vicinanze

Trasporto pubblico Trasporto pubblico
Principi D'Acaja
Principi D'Acaja
2,2 Km
XVIII Dicembre
XVIII Dicembre
2,5 Km
Torino Dora GTT
Torino Dora GTT
700 m
Madonna di Campagna
Madonna di Campagna
1,1 Km
Fermata 182 Largo Borgaro
Fermata 182 Largo Borgaro
700 m
Ricariche auto elettriche Ricariche auto elettriche
Bluetorino Stradella
560 m
Edit Torino
1,2 Km
evway TO Statuto
2,2 Km
Lidl Altessano
2,2 Km
Bluetorino Piazza Derna
2,3 Km
Scuole Scuole
Scuola elementare Giuseppe Allievo
180 m
Scuola media Antonio Vivaldi
470 m
Palestra della A.Vivaldi
490 m
Accademia dello spettacolo
490 m
Comprensorio Vivaldi Murialdo
510 m
Farmacia Farmacia
Farmacia
290 m
Farmacia Garelli
320 m
Farmacia Madonna della Vittoria
390 m
Calvo
400 m
Comunale 29 - Afc
470 m
Ospedali Ospedali
Amedeo di Savoia
1,2 Km
Ospedale Amedeo di Savoia
1,2 Km
Ospedale Maria Vittoria
1,9 Km
Ospedale San Giovanni Bosco
2,3 Km
Ospedale Oftalmico
2,4 Km
Supermercati Supermercati
Pittarello
210 m
Bennet
280 m
In Piedi
340 m
il Gigante
570 m
Carrefour Market
680 m
Negozi Negozi
Negozi
460 m
Sapori del Palato
510 m
Calliope
990 m
Piazza Italia
1,0 Km
Biobottega
1,0 Km
Bar Bar
Bar
240 m
Bar
690 m
Supermarket
780 m
Bar Iris
960 m
Bar Tabacchi
1,0 Km
Ristoranti Ristoranti
L'Alternativa
290 m
Sa Crocoriga
310 m
Cantine Vittoria
390 m
Moderno
530 m
Grande Bambù
630 m
Mostra tutto

Caratteristiche

Rif.:
61197381
Piano:
1 di 4 (Piano basso)
Balconi:
2
Camere da letto:
2
Arredamento:
Assente
Condizionamento:
Autonomo
Mostra tutto
Prezzo Prezzo
€ 125.000
Rata mutuo Rata mutuo
€ 593 / mese
Spese annue Spese annue
€ 1.100
Proponi il tuo prezzoProponi il tuo prezzo

Classe Energetica

F
F
F
F
F
F
F
F
F
EP globale non rinnovabile:
265.00 kW h/m² anno
EP globale rinnovabile:
0.63 kW h/m² anno
EP invernale del fabbricato:
EP estiva del fabbricato:
Anno di costruzione:
1950
Riscaldamento:
Centralizzato
Tipo impianto:
A radiatori
Tipo alimentazione:
Metano

Ti interessa visionare l'immobile?

Fissa un appuntamento  Fissa un appuntamento

Richiedi informazioni

Clicca su Leggi per aprire l'informativa
* Questi campi sono obbligatori

Calcola il tuo mutuo

Semplice e senza impegno
Anticipo

( % )
Mutuo

( % )

pochi semplici passi

inserisci i tuoi dati
Questionario completato
Grazie per aver richiesto un appuntamento senza impegno con un nostro Consulente del Credito e Assicurativo.

Hai inserito correttamente tutti i dati necessari e a breve riceverai una e-mail con un link da convalidare per inviare i tuoi dati.
Affiliato
Studio Coppino Sas
Via Cardinal Massaia, 66/B 10147 Torino (TO)

Il nostro staff


  • Ricardo Cristian Galben
    Collaboratore

  • Andrea Lombardo
    Collaboratore

  • Simone Pinca
    Collaboratore

  • Giulia Pinelli
    Coordinatrice

  • Rebecca Pantaleo
    Coordinatrice

  • Fabio Passalacqua
    Affiliato

  • Giovanni Santarelli
    Collaboratore
Via Cardinal Massaia, 66/B 10147 Torino (TO)
Zona: Borgo Vittoria-Madonna di Campagna-Borgata Tesso
Mostra su mappa
Orari: Dal lunedì al venerdì 8:45 -12:30 /15:00 -20:30 sabato 8:45 -12:30 / 14:30 -17:30
Affiliato
Studio Coppino Sas
Via Cardinal Massaia, 66/B 10147 Torino (TO)

2026 Tecnocasa Franchising S.p.A. - P. IVA 08365160152 - Via Monte Bianco 60/A 20089 Rozzano (MI). Ogni agenzia ha un proprio titolare ed è autonoma. Privacy policy | Policy utilizzo | Cookie policy