Bilocale in vendita

Torino, Via Verolengo - Borgata Tesso
€ 69.000
Prezzo aggiornato
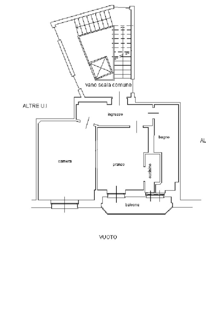
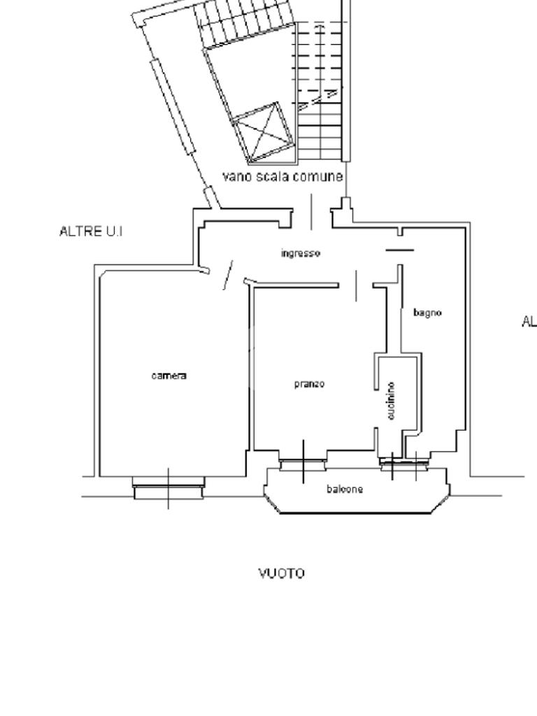
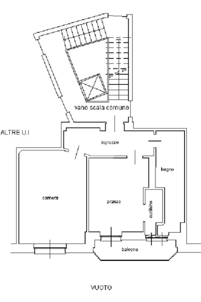
2 locali 2 locali
48 Mq 48 Mq
1 bagno 1 bagno

Bilocale in vendita

Torino, Via Verolengo - Borgata Tesso

Descrizione annuncio

Nel cuore di Borgata Tesso, a Torino, proponiamo un bilocale situato al sesto piano di un edificio dotato di ascensore. Con una superficie di 48 mq, l'appartamento offre una vista panoramica che valorizza ogni ambiente. La disposizione interna comprende due locali ben distribuiti e un bagno, garantendo comfort e funzionalità. Un balcone completa la proprietà, offrendo uno spazio esterno privato. Costruito nel 1960, l'immobile è dotato di videocitofono, assicurando sicurezza e praticità. Libero subito, rappresenta un'opportunità ideale per chi desidera un'abitazione pronta per essere vissuta. La posizione strategica rende questo bilocale particolarmente comodo ai servizi essenziali, con supermercati e altre attività commerciali a pochi passi. Perfetto per chi cerca una soluzione abitativa in una zona ben servita e collegata.

Mostra tutto

Nelle vicinanze

Trasporto pubblico Trasporto pubblico
Principi D'Acaja
Principi D'Acaja
2,2 Km
XVIII Dicembre
XVIII Dicembre
2,4 Km
Torino Dora GTT
Torino Dora GTT
660 m
Madonna di Campagna
Madonna di Campagna
1,2 Km
Fermata 182 Largo Borgaro
Fermata 182 Largo Borgaro
670 m
Ricariche auto elettriche Ricariche auto elettriche
Bluetorino Stradella
620 m
Edit Torino
1,2 Km
evway TO Statuto
2,1 Km
Lidl Altessano
2,3 Km
Bluetorino Risorgimento
2,3 Km
Scuole Scuole
Scuola elementare Giuseppe Allievo
250 m
Accademia dello spettacolo
520 m
Scuola media Antonio Vivaldi
560 m
Palestra della A.Vivaldi
570 m
Asilo Nido "La Nidiata"
590 m
Farmacia Farmacia
Farmacia
340 m
Comunale 29 - Afc
390 m
Farmacia Garelli
390 m
Calvo
410 m
Farmacia Madonna della Vittoria
420 m
Ospedali Ospedali
Ospedale Amedeo di Savoia
1,2 Km
Amedeo di Savoia
1,2 Km
Ospedale Maria Vittoria
1,9 Km
Ospedale Oftalmico
2,3 Km
Ospedale San Giovanni Bosco
2,4 Km
Supermercati Supermercati
Pittarello
130 m
Bennet
200 m
In Piedi
260 m
il Gigante
500 m
Lidl
660 m
Negozi Negozi
Sapori del Palato
480 m
Negozi
520 m
Calliope
910 m
Piazza Italia
920 m
Biobottega
920 m
Bar Bar
Bar
280 m
Bar
670 m
Supermarket
830 m
Bar Iris
920 m
Bar Tabacchi
980 m
Ristoranti Ristoranti
L'Alternativa
250 m
Sa Crocoriga
390 m
Cantine Vittoria
420 m
Moderno
590 m
Pizzeria Gli Ulivi
650 m
Mostra tutto

Caratteristiche

Rif.:
61172653
Piano:
6 di 9 con ascensore (Piano alto)
Balconi:
1
Camere da letto:
1
Arredamento:
Assente
Condizionamento:
Assente
Mostra tutto
Prezzo Prezzo
€ 69.000
Rata mutuo Rata mutuo
€ 325 / mese
Proponi il tuo prezzoProponi il tuo prezzo

Classe Energetica

E
E
E
E
E
E
E
E
E
EP globale non rinnovabile:
120.78 kW h/m² anno
EP globale rinnovabile:
18.11 kW h/m² anno
EP invernale del fabbricato:
EP estiva del fabbricato:
Anno di costruzione:
1960
Riscaldamento:
Centralizzato
Tipo impianto:
A radiatori
Tipo alimentazione:
Metano

Prezzo ridotto di €1 (19%%)

Ti interessa visionare l'immobile?

Fissa un appuntamento  Fissa un appuntamento

Richiedi informazioni

Clicca su Leggi per aprire l'informativa
* Questi campi sono obbligatori

Calcola il tuo mutuo

Semplice e senza impegno
Anticipo

( % )
Mutuo

( % )

pochi semplici passi

inserisci i tuoi dati
Questionario completato
Grazie per aver richiesto un appuntamento senza impegno con un nostro Consulente del Credito e Assicurativo.

Hai inserito correttamente tutti i dati necessari e a breve riceverai una e-mail con un link da convalidare per inviare i tuoi dati.
Affiliato
Studio Coppino Sas
Via Cardinal Massaia, 66/B 10147 Torino (TO)

Il nostro staff


  • Ricardo Cristian Galben
    Collaboratore

  • Andrea Lombardo
    Collaboratore

  • Simone Pinca
    Collaboratore

  • Giulia Pinelli
    Coordinatrice

  • Rebecca Pantaleo
    Coordinatrice

  • Fabio Passalacqua
    Affiliato

  • Giovanni Santarelli
    Collaboratore
Via Cardinal Massaia, 66/B 10147 Torino (TO)
Zona: Borgo Vittoria-Madonna di Campagna-Borgata Tesso
Mostra su mappa
Orari: Dal lunedì al venerdì 8:45 -12:30 /15:00 -20:30 sabato 8:45 -12:30 / 14:30 -17:30
Affiliato
Studio Coppino Sas
Via Cardinal Massaia, 66/B 10147 Torino (TO)

2026 Tecnocasa Franchising S.p.A. - P. IVA 08365160152 - Via Monte Bianco 60/A 20089 Rozzano (MI). Ogni agenzia ha un proprio titolare ed è autonoma. Privacy policy | Policy utilizzo | Cookie policy